情報更新日:2025年10月06日
最寄り駅 徒歩 住所 |
賃料 管理・共益費 |
敷金 礼金 |
面積 間取り |
種別 築年月 向き |
---|---|---|---|---|
東京メトロ日比谷線 『六本木駅』 徒歩8分 東京都港区西麻布4丁目11-28 |
24.8万円 1万円 |
敷:1ヶ月 礼:なし 仲:1.1ヶ月 |
55.99㎡ 1LDK |
マンション 1979年03月 南 |
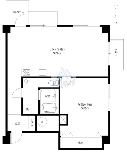
物件名 | 麻布エンパイアマンション 705号室 | ||||
---|---|---|---|---|---|
所在地 | 東京都港区西麻布4丁目11-28 | ||||
交通 | 東京メトロ日比谷線 『六本木駅』 徒歩8分 /東京メトロ日比谷線 『広尾駅』 徒歩8分 /東京メトロ千代田線 『乃木坂駅』 徒歩9分 | ||||
賃料 (管理費・共益費) |
24.8万円(1万円) | 敷金/礼金 仲介手数料 |
敷:1ヶ月/ 礼:なし/ 仲:1.1ヶ月 | ||
その他料金 | 敷金は解約時償却となります | ||||
間取り | 1LDK | 間取り詳細 | LDK15・洋室8.2 | 専有面積 | 55.99㎡ |
種別/構造 | マンション/SRC(鉄骨鉄筋コンクリート) | 階部分/階建て | 地上7階部分/地上10階建て | 方位 | 南 |
築年月 | 1979年03月 | 入居可能日 | 即 | 保険 | 損保有り・指定有り 2万円/2年 |
駐車場 | 空き無し | ||||
バイク置き場 | 有り | 駐輪場 | |||
鍵交換代 | 保証委託料 | 18.06万円 | |||
設備 |
バス・トイレ別|室内洗濯機置場|洗面所独立|洗面化粧台|温水洗浄便座|トイレ数:1|エアコン付き|エアコン数:2基|クローゼット|シューズボックス|インターネット接続タイプ:光対応|IHシステムキッチン:三口設置済み|システムキッチン|グリル|フローリング|全居室フローリング|バルコニー付き|2面バルコニー|TVモニタ付きインタホン|防犯カメラ|エレベーター|エレベーター数:1基|専用ゴミ置き場|バイク置場有り|公営水道|本下水道|
夜間オートロック |
||||
条件 | 法人:可|学生:可|単身者:可|2人入居:可|子供:可|ペット:相談可|楽器:不可|保証会社利用:可|保証人:要|事務所利用:可|2階以上|角部屋|2面採光|南面リビング|南向き|2駅利用可|2沿線利用可|3駅以上利用可|3沿線以上利用可|リノベーション| | ||||
備考 | |||||
更新日 | 2025年10月06日 | 情報有効期限 | 2025年10月20日 | ||
お問合せ番号 | 取引形態 | 一般媒介 | 業者付け | 可 |
※各種情報と現状に差異がある場合は、現状優先となります。
東京都港区南青山2-2-15ウィン青山519
営業時間:10:00~19:00 定休日:土・日・祝(電話応対可能です)
東京都知事(1)第101973号